Tube Tapering Machine Used in CSEPEL

BOBO supported CSEPEL with a tube tapering solution after one month of negotiation and technical alignment. The final delivery was…

June 13, 2022
Tube Tapering Machine Used in CSEPEL

BOBO supported CSEPEL with a tube tapering solution after one month of negotiation and technical alignment. The final delivery was adapted to the customer's preference for higher one-pass efficiency rather than a two-step process focused on surface smoothness.

Customer Background / Requirement

The project moved into contract stage on March 29, 2022 after one month of discussion. During requirement review, BOBO initially recommended two-step processing, but the customer made it clear that surface smoothness was not the main priority and that single-pass efficiency mattered more.

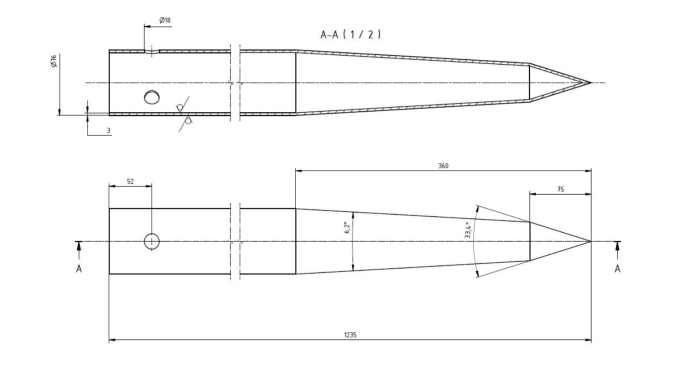
BOBO Solution / Delivery Process

To match that requirement, BOBO completed the machine build and then carried out production-stage testing before delivery. The validation work focused on whether two different tube tapering types could be completed in one pass instead of two.

Result / Current Status

The test results confirmed that both tapering types could be finished in one-time processing. According to the original project record, the cooperation continued smoothly, supported by steady communication and mutual trust between both teams.

Project Images

Tube Tapering Machine Used in CSEPEL - 2
Tube Tapering Machine Used in CSEPEL - 3
Tube Tapering Machine Used in CSEPEL - 4
Tube Tapering Machine Used in CSEPEL - 5
Tube Tapering Machine Used in CSEPEL - 6

Talk With BOBO

If you are planning a tube tapering or tube end forming project, BOBO can review your material, taper shape, and output target to propose a practical processing route.